Novos empreendimentos Apartamento 3 cômodos, 60 m² para Eilat - Eilat
EXCLUSIVIDADE
- Adicionado em 26/10/2025
- VU 1586 vezes
- REF: 288-IBL-483
₪1.590.000
$487.335
€421.191
Descrição do imóvel
LESDESCRIPTIONS
Não perca!, agradável, central, com terraço, lindo apartamento, bem equipado, boa localização, bom negócio, boa orientação solar, calmo, claro, em uma rua tranquila, em um belo imóvel, em um imóvel novo, lugar quieto, andar superior com vista, grande, excelente estado, magnífico, novo, alvará de construção, perto do mar, projeto de qualidade
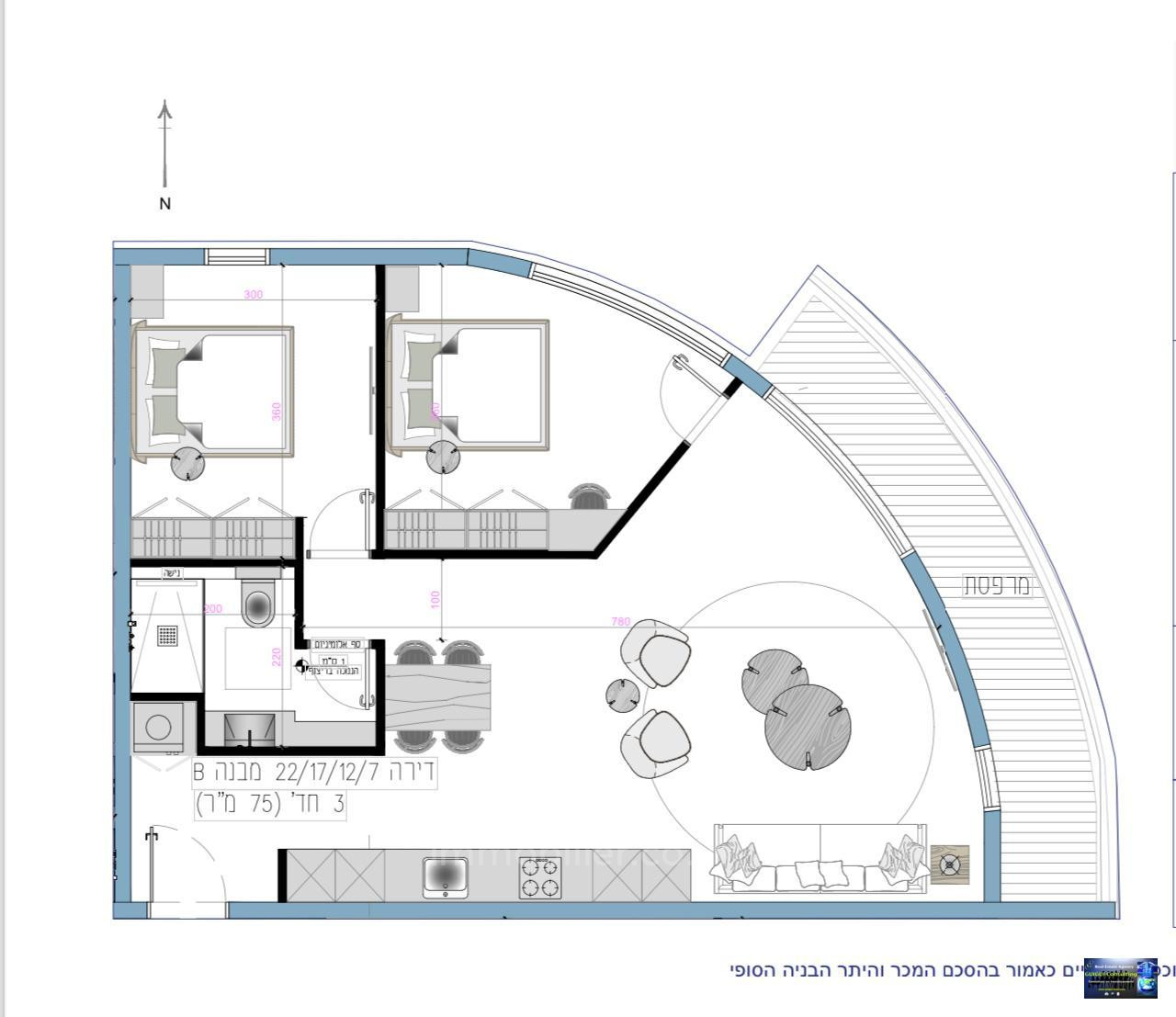
3cômodos
60m²
: 1
: Norte,Sul,Leste,Oeste
: 1
: Norte,Sul,Leste,Oeste
MAP Ver no mapa
Início da construção :
15/08/2024
Entrega :
31/12/2026
Também disponível em:
Apartamento 2
cômod:
APARTIRDE 1.277.000 ₪
- Nome: Guigui
- Sobrenome: David
- Telefone: Mostrar o número

