Novos empreendimentos Apartamento 3 cômodos, 63 m² para Eilat - Eilat
EXCLUSIVIDADE
- Adicionado em 14/01/2026
- VU 1419 vezes
- REF: 288-IBL-484
₪1.630.000
$511.005
€444.175
Descrição do imóvel
LESDESCRIPTIONS
Não perca!, agradável, central, com terraço, lindo apartamento, bem equipado, boa localização, bom negócio, boa orientação solar, calmo, claro, em uma rua tranquila, em um belo imóvel, em um imóvel novo, lugar quieto, andar superior com vista, grande, excelente estado, magnífico, novo, alvará de construção, perto do mar, projeto de qualidade
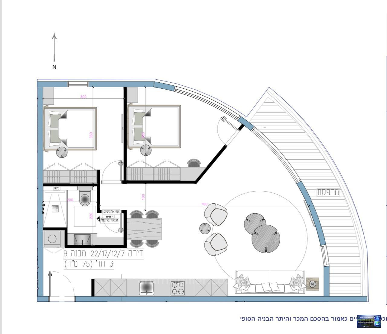
3cômodos
63m²
: 1
: Norte,Sul,Leste,Oeste
: 1
: Norte,Sul,Leste,Oeste
MAP Ver no mapa
Início da construção :
15/10/2025
Entrega :
31/12/2028
Também disponível em:
Apartamento 2
cômod:
APARTIRDE 1.290.000 ₪
- Nome: Guigui
- Sobrenome: David
- Telefone: Mostrar o número

